Στον διαχωρισμό αριθμού οικοπέδων και στην ανέγερση, σε πρώτο στάδιο, 17 μικρών μονοκατοικιών στη Δευτερά, προχωρεί ο γνωστός όμιλος J&P (Joannou & Paraskevaides), θέλοντας να εκμεταλλευθεί τη ζήτηση που υπάρχει από ζευγάρια για μικρότερες και οικονομικότερες στεγαστικές λύσεις. 
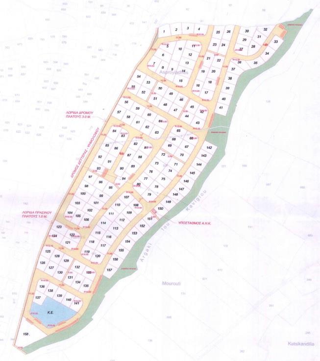
Το έργο Deftera Park Residences περιλαμβάνει τον διαχωρισμό συνολικά 157 οικιστικών οικοπέδων σε ιδιόκτητη γη, η οποία βρίσκεται παρά τον δρόμο Δευτεράς – Ψιμολόφου. Όπως πληροφορείται το InBusinessNews, ο διαχωρισμός των οικοπέδων θα γίνει εντός του 2019, με τα πρώτα 50 να διαχωρίζονται στις αρχές του νέου έτους. Ήδη, 11 οικόπεδα έχουν πωληθεί, ενώ άλλα 12 έχουν προκρατηθεί. Αξίζει να σημειωθεί ότι ο μέσος όρος της τιμής πώλησης τους ανέρχεται στις €100 χιλιάδες.

Το έργο Deftera Park Residences περιλαμβάνει τον διαχωρισμό συνολικά 157 οικιστικών οικοπέδων σε ιδιόκτητη γη, η οποία βρίσκεται παρά τον δρόμο Δευτεράς – Ψιμολόφου. Όπως πληροφορείται το InBusinessNews, ο διαχωρισμός των οικοπέδων θα γίνει εντός του 2019, με τα πρώτα 50 να διαχωρίζονται στις αρχές του νέου έτους. Ήδη, 11 οικόπεδα έχουν πωληθεί, ενώ άλλα 12 έχουν προκρατηθεί. Αξίζει να σημειωθεί ότι ο μέσος όρος της τιμής πώλησης τους ανέρχεται στις €100 χιλιάδες.
Τονίζεται ότι η γη, η συνολική αξία της οποίας υπολογίζεται στα €16 εκατ, ανήκε από πριν στην J&P.
Διαβάστε ακόμα: Η Κύπρος στις επιλογές ξένων επενδυτών
<
Αρχή με 17 σπίτια
Παράλληλα, σε πρώτο στάδιο η J&P έχει σχεδιάσει και έχει υποβάλει τις απαραίτητες αιτήσεις για την ανέγερση των πρώτων 17 οικιών, οι οποίες περιλαμβάνονται στο ίδιο project. Πρόκειται για μικρές κατοικίες, η αδειοδότηση των οποίων βρίσκεται στο στάδιο της αναμονής για έκδοση πολεοδομικής άδειας. Εφόσον τα χρονοδιαγράμματα τηρηθούν και οι απαραίτητες άδειες εκδοθούν έγκαιρα, τα σπίτια αναμένεται να είναι έτοιμα σε 1,5 χρόνο από σήμερα. Σε ότι αφορά τις τιμές των κατοικιών, αν και ακόμα δεν έχουν καθοριστεί, υπολογίζονται κατά μέσο όρο στις €250 χιλιάδες.
Στο όλο project περιλαμβάνεται, εξάλλου, η δημιουργία ενός γραμμικού πάρκου στην ανατολική πλευρά του ακινήτου, στο οποίο θα υπάρχει και ποδηλατόδρομος.
Τα μεταγενέστερα πλάνα
Σύμφωνα με πληροφορίες, στόχος της εταιρείας είναι να διερευνήσει το ενδεχόμενο κατασκευής επιπλέον κατοικιών στο σημείο, στο μέλλον. Η απόφαση αυτή θα εξαρτηθεί τόσο από το ενδιαφέρον που θα επιδειχθεί για τα σπίτια που ήδη σχεδιάζονται όσο και από την προωθούμενη κατασκευή νέου δρόμου, ο οποίος θα δίνει τη δυνατότητα απευθείας εξόδου στον αυτοκινητόδρομο Λευκωσίας Λεμεσού.
Αξίζει, πάντως, να σημειωθεί ότι η Δευτερά αποτελεί μια από τις περιοχές ζήτησης από νεαρά ζευγάρια, λόγω της εγγύτητας της με τη Λακατάμια αλλά και των χαμηλότερων τιμών στα ακίνητα.
Σύμφωνα με πληροφορίες, στόχος της εταιρείας είναι να διερευνήσει το ενδεχόμενο κατασκευής επιπλέον κατοικιών στο σημείο, στο μέλλον. Η απόφαση αυτή θα εξαρτηθεί τόσο από το ενδιαφέρον που θα επιδειχθεί για τα σπίτια που ήδη σχεδιάζονται όσο και από την προωθούμενη κατασκευή νέου δρόμου, ο οποίος θα δίνει τη δυνατότητα απευθείας εξόδου στον αυτοκινητόδρομο Λευκωσίας Λεμεσού.
Αξίζει, πάντως, να σημειωθεί ότι η Δευτερά αποτελεί μια από τις περιοχές ζήτησης από νεαρά ζευγάρια, λόγω της εγγύτητας της με τη Λακατάμια αλλά και των χαμηλότερων τιμών στα ακίνητα.







