Σε προκήρυξη διαγωνισμού για επέκταση /αναβάθμιση του Τμήματος Επειγόντων Περιστατικών του Νοσοκομείου Κυπερούντας, προχώρησε το Τμήμα Δημοσίων Έργων. 

Σύμφωνα με το κείμενο της προκήρυξης, οι εργασίες που θα εκτελέσει ο Εργολάβος περιλαμβάνουν τα ακόλουθα:
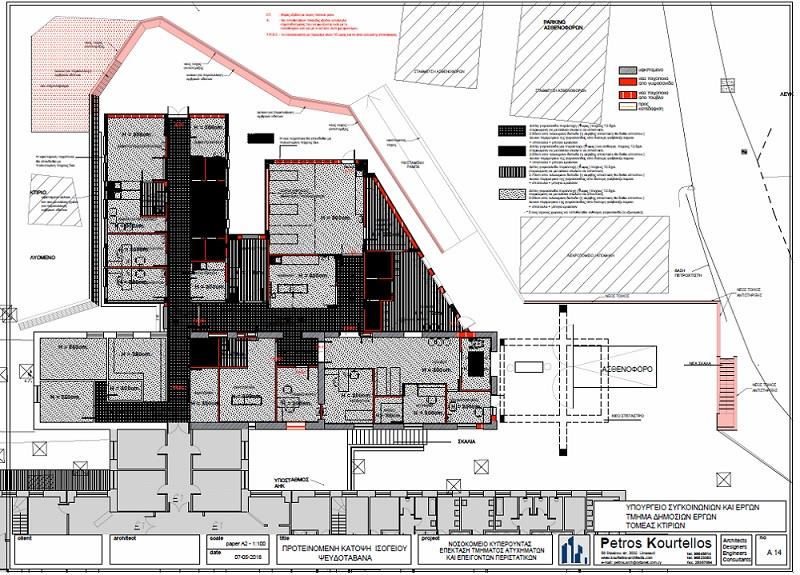
- Κατασκευή νέου ισόγειου κτιρίου με στέγη στα Βόρεια, πίσω από το υφιστάμενο τμήμα πρώτων βοηθειών. Το τμήμα αυτό θα περιλαμβάνει χώρο αναμονής, χώρο ανάνηψης, χώρο εξέτασης θεραπείας τριών κλινικών, αποθήκη φαρμάκων και αποχωρητήρια. Δίπλα ακριβώς από το χώρο, στα δυτικά, πίσω από το Ακτινολογικό, θα γίνει γενική ανακαίνιση του υφιστάμενου χώρου. Θα περιλαμβάνει επίσης την αλλαγή της στέγης και προσθηκομετατροπές. Ο χώρος αυτός θα διαμορφωθεί ώστε να περιλαμβάνει γραφεία προσωπικού, αποδυτήρια, και δύο δωμάτια.
- Γενική ανακαίνιση και αλλαγή στέγης του χώρου που βρίσκεται στη νότια πλευρά του Τμήματος ανάμεσα από το υφιστάμενο τμήμα πρώτων βοηθειών. Ο χώρος αυτός θα διαμορφωθεί ώστε να περιλαμβάνει προθάλαμο και είσοδο, γραφείο εγγραφών και αρχείο, δωμάτιο αξιολόγησης, γραφείο ιατρού, χειρουργείο και βοηθητικούς χώρους.
<
Αξίζει να σημειωθεί ότι ο Εργολάβος θα εκτελέσει όλες τις κατεδαφίσεις που απαιτούνται για σκοπούς εκτέλεσης των εργασιών, σύμφωνα με τα εγκεκριμένα σχέδια.
Διαβάστε ακόμα: Άλμα 20% στα ενοίκια διαμερισμάτων σε δύο χρόνια
Η εκτιμώμενη αξία του έργου υπολογίζεται στις 880 χιλιάδες ευρώ, χωρίς το ΦΠΑ, ενώ η σύμβαση έχει διάρκεια 13 μήνες.
Διαβάστε ακόμα: Σήκωσαν €160 εκατ. ασφαλιστικές και συνταξιοδοτικά ταμεία







