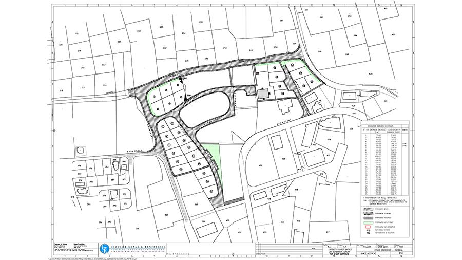
Η βιοτεχνική περιοχή Δερύνειας ολοκληρώθηκε πρόσφατα με σκοπό τη στέγαση μικρών βιοτεχνιών και άλλων επιχειρήσεων. Ο συνολικός αριθμός των βιοτεχνικών οικοπέδων είναι 29 με εμβαδόν 500τ.μ. – 900τ.μ. Το Δημοτικό Συμβούλιο Δερύνειας αποφάσισε ομόφωνα την παροχή κινήτρων για διάθεση των βιοτεχνικών οικοπέδων στους ενδιαφερόμενους όπως:
Οι ενδιαφερόμενοι μπορούν να απευθύνονται στα γραφεία του Δήμου Δερύνειας κατά τις εργάσιμες μέρες στο τηλ. 23811000 για περισσότερες πληροφορίες.
Δήμος Δερύνειας
<
- Με την υπογραφή της Σύμβασης Μίσθωσης καταβάλλεται μίσθωμα 6 μηνών ως προκαταβολή, το οποίο δεν επιστρέφεται σε περίπτωση ακύρωσης της Σύμβασης.
- Τα επόμενα 2 χρόνια δεν θα καταβάλλεται μίσθωμα.
- Τα επόμενα 5 χρόνια το ετήσιο μίσθωμα θα είναι €4,5/μ2.
- Τα επόμενα 5 χρόνια το ετήσιο μίσθωμα θα αυξηθεί κατά 6%, δηλαδή θα είναι €4,77/μ2.
- Μετά το 12,5ο έτος και μέχρι τη συμπλήρωση των 33ων ετών το ετήσιο μίσθωμα θα αυξάνεται κατά 3% ανά έτος.
Οι ενδιαφερόμενοι μπορούν να απευθύνονται στα γραφεία του Δήμου Δερύνειας κατά τις εργάσιμες μέρες στο τηλ. 23811000 για περισσότερες πληροφορίες.
Δήμος Δερύνειας
<












